Schönes Altstadthaus an zentraler Lage
Beschreibung:
Dieses Prachtstück war für den Ingenieur, Architekt, Baumeister und Zimmermann eine grosse Herausforderung. Der Zugang erfolgt über das Treppenhaus mit Lift via Schifflände 5.
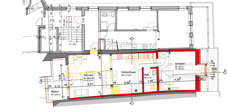
Sonnige 2 1/2 Zimmer Wohnung mit Südbalkon (vermietet)
Früher waren hier Estrich und Mansardenzimmer. Der Eingang zur Wohnung erfolgt neu über das Treppenhaus resp. Lift von der Schifflände. Der Südbalkon, die moderne Küche, das originelle Bad, die Landhaudielen und das Schlafzimmer mit Holzbalken bieten ein einzigartiges Wohnerlebnis. Zudem steht ein Einbauschrank im Vorraum zur Verfügung.
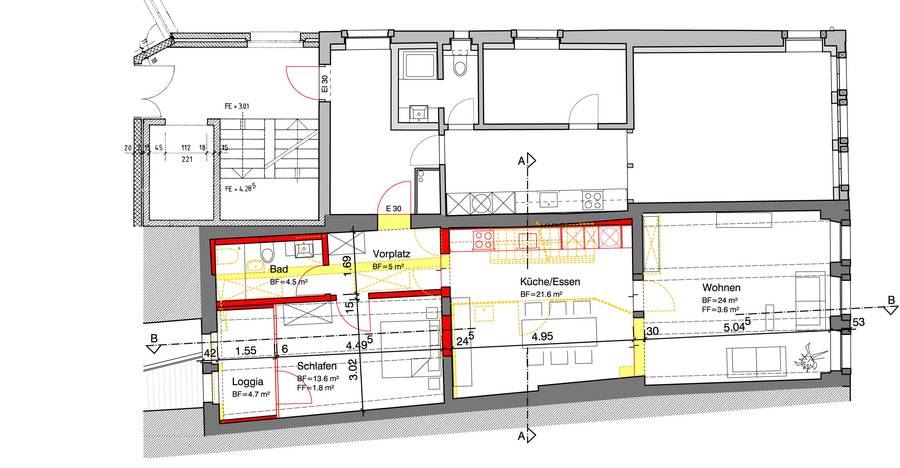
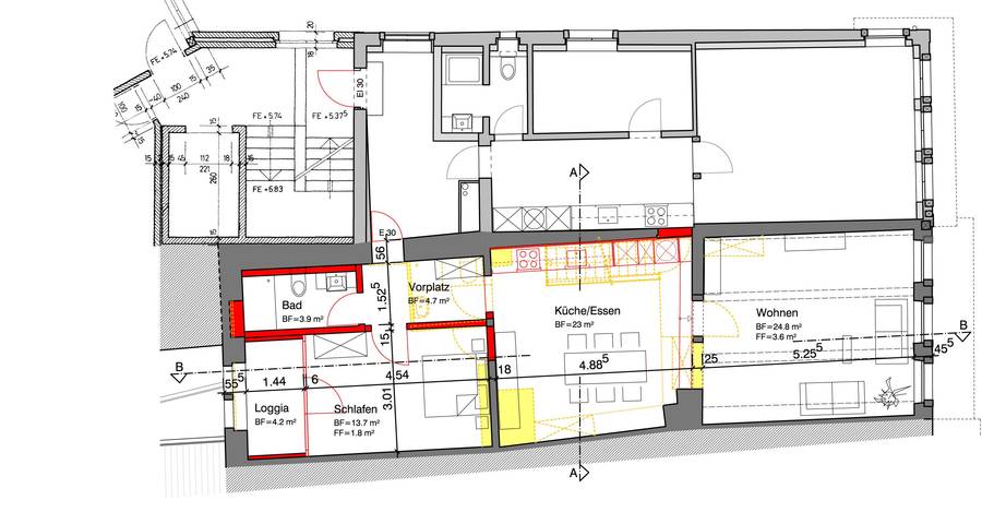
Exklusive 4 1/2 Maisonette mit Loggia
Einzigartige und wundervolle Kombination zwischen Neubau und historischer Architektur.
Schlafzimmer mit offener Badewanne, sep. Dusche, 2 WCs, moderne Küche, eigene Waschmaschine / Tumbler, Landhausdielen, Lift, Kellerabteil, elegante Galerie und zwei bezaubernde Loggias (gedeckte Terrasse). Eine exklusive und besondere Altstadtwohnung.
Gemäss neuer Hausordnung bevorzugen wir Nichtraucher und Haustiere sind nicht geeignet für dieses Objekt / Altstadt.
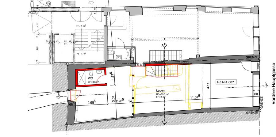
Ladenlokal (vermietet)
Das Lokal hat ca. im EG 66 m2 und UG 21 m2. Der vordere Teil zeigt noch eine historische Decke aus Holz. Alles andere wurde komplett neu renoviert. Nach dem Hochwasser vom 8. Juli 2017 wurde der Parkett gegen einen Keramikboden ausgewechselt.
Im 1. & 2. OG befindet sich eine grosszügige 4 1/2 Zimmer Maisonette (mit Galerie) mit 130 m2 / Die Wohnung ist eine einzigartige Kombination zwischen Neubau im hintern Teil Richtung Pfistergasse und zwei original erhaltenen Zimmern zur Hauptgasse hin. Das Schlafzimmer verfügt über eine offene Badewanne für romantische und entspannende Momente und sep. WC.
Vom Schlafgemach sieht man durch die Innenfenster in die Galerie und Wohnräume. Die Wohnung verfügt zudem über eine Dusche und zwei WCs. Moderne Küche und Landhausdielen sind bei uns Standard. Das Schlafzimmer und das Wohnzimmer haben je eine Loggia. Kellerabteil und eigene Waschmaschine sind ebenfalls mit dem Lift erreichbar.
WYLER-Lofts (schöner Wohnen in der Altstadt Zofingen)


































