im ersten Obergeschoss 3 1/2 Zimmer Wohnung mit Terrasse und Lift (vermietet).
Schönes Stadthaus 3 1/2 Zimmer (vermietet)
Sehr schöne Stadtwohnung, die mehr an ein eigenständiges Stadthaus erinnert. Die helle Luxus-Wohnung verfügt über ca. 100 m2 und hat eine grosse Laube / Terrasse. Dieses Objekt gehört zu den attraktivsten Angeboten unseres Immobilienportfolios. Der Zugang erfolgt über das eigene Treppenhaus oder man gelangt auch mit dem modernen Lift auf jede der drei Etagen. Die offene Küche ist modern und hat einen Schieferboden, die restlichen Zimmer sind mit Landhausdielen ausgestattet. Ein eigner Abstellraum für Velos etc. sowie ein eigenes Kellerabteil werten die Wohnung zusätzlich auf. Eigene Waschmaschine und Tumbler sind natürlich ebenfalls dabei.
Eine besondere Altstadt-Wohnung mit hohem Ausbaustandard, zwei Schlafzimmer, offenes Wohn- und Esszimmer. Die Wohnung verfügt über ca. 100 m2 und hat eine separate Terrasse im obersten Stockwerk. Der Zugang zur Wohnung erfolgt über Treppenhaus oder man gelangt auch mit dem modernen Lift direkt in die Wohnung. Das Objekt kann auf Vereinbarung im Januar 2020 übergeben werden. Die offene Küche ist modern und hat einen Schieferboden, die restlichen Zimmer sind mit Landhausdielen ausgestattet.
Ein separate Abstellkammer sowie ein eigenes Kellerabteil werten die Wohnung zusätzlich auf. Eigene Waschmaschine und Tumbler sind natürlich ebenfalls dabei. Plan >> Wohnung
Geschichte:
Ehemals << Schmied Bazar>>, das neue Geschäft der Firma Wyler wurde 1923 bezogen und diente bis Ende Sommer 2010 noch als Fachgeschäft für Vorhänge.
Lage:
Zentraler und heller Standort. Das Haus hat drei offene Seiten mit Fenstern.
Ausbaukonzept und -standard:
Das Konzept wurde mit einem wunderschönen Ladenlokal vollendet. Darüber befinden sich drei schöne Wohnungen. Alle Wohnungen und Ebenen werden direkt mit dem Lift erreicht. Auf dem Dach gibt es für für jede Wohnung eine Terrasse. In allen Wohnungen profitieren die Mieter von schönen Landhausdielen, moderner Küche, Bad und zusätzlicher Dusche sowie eigener Waschmaschine und Tumbler.
Sehr schöne 4 Zi-Altstadtwohnung mit Dachterrasse (bereits vermietet)
Diese 4 Zimmer Altstadtwohnungen bietet viel Komfort. Speziell sind hier die Holzbalken und Holzverkleidungen sowie das Freiluftzimmer (Terrasse) auf dem Dach. Der Lift führt direkt in die Wohnung. Schöne, zentrale Ecklage, moderne Küche, Dusche, Badewanne, im 2. OG und hat hohe Räume. Geölte Landhausdielen (Eiche, weiss, geraucht) sowie Schieferplatten werten das Objekt zusätzlich auf. Es hat eine zusätzliche Abstellkammer, eigene Waschmaschine und Tumbler sowie ein Kellerabteil.
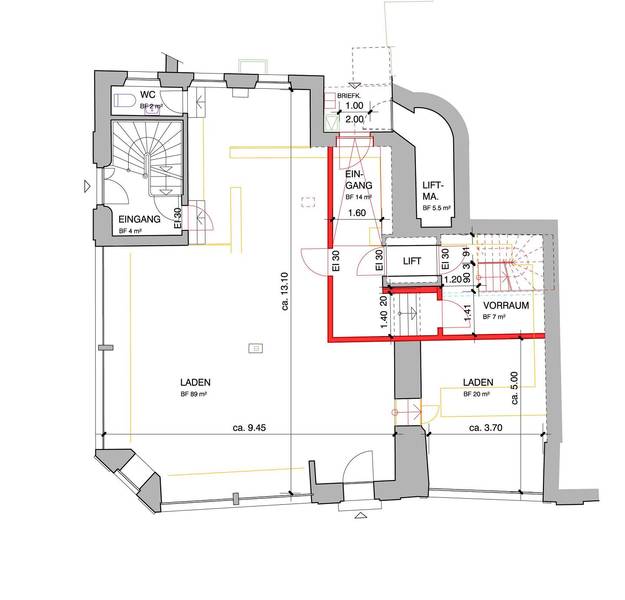
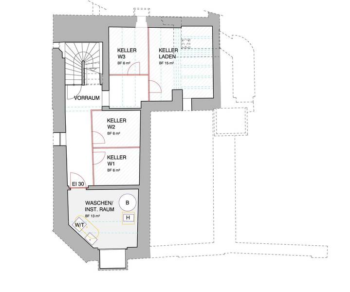
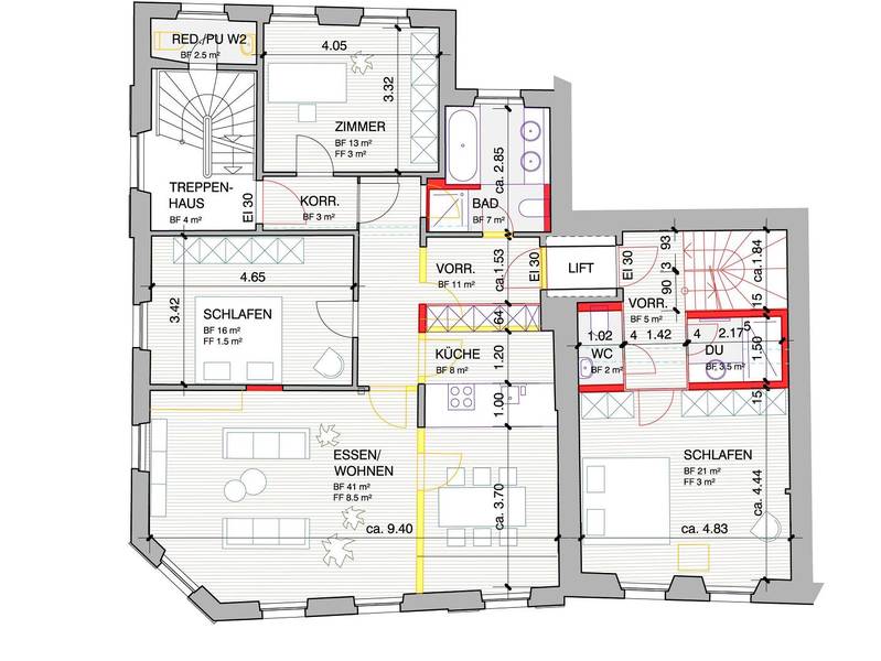
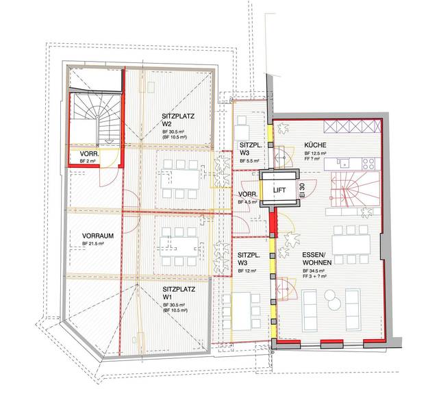
Pläne
EG-Laden, UG-Keller, OG1-Loft, OG2, Dach mit Terrasse













































