Schöne Altstadt-Villa (zu vermieten) / reserviert!
Beschreibung:
Ein exklusives Wohnhaus und eines der schönsten Häuser in der Altstadt Zofingen.
Geschichte:
Das Haus mit antiker Geschichte diente in der Vergangenheit als Werkstatt, Lager und im Anfang als Verkaufslokal. WYLER verrichtete hier ihre Polsterarbeiten.
Lage:
Gute Zufahrt von der Rathausgasse, gegenüber dem ehemaligen Speiselokal Schmiedstube. Die nun als Wohnhaus sehr schön renoviert wurde. Ebenfalls angrenzend an das renovierte Hotel Amadeo (ehemals Rössli). Gegenüber wurde die Liegenschaft von Architekt Walter Jud neu renoviert. Die Umgebung (Höfli) wurde ebenfalls neu gestaltet. Die Altstadt und im speziellen die Schmied- und Storchengasse wurden durch diese Projekte erheblich aufgewertet.
Gehobener Ausbaustandard:
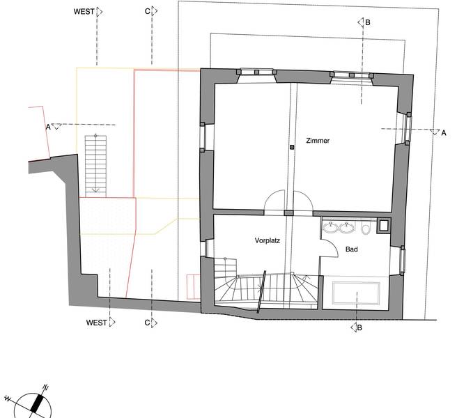
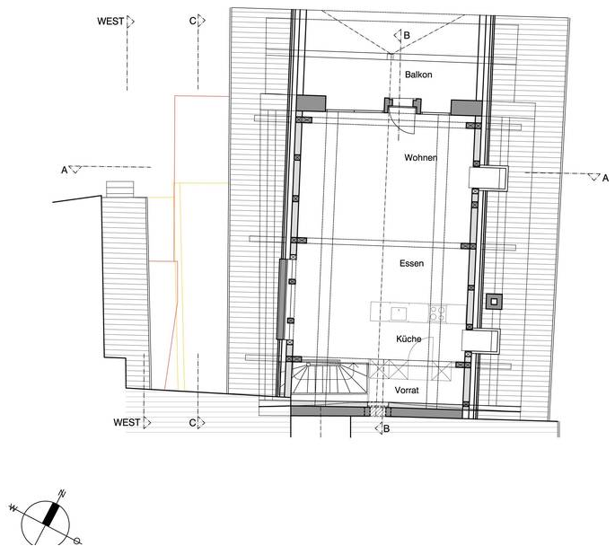
Die Liegenschaft mit grossen Räumen ca. 220 m2, Balkon und Terrasse, wurde komplett renoviert. Gehobelte Landhausdielen, neue Küche, schönes Bad, separate Dusche, 3 WCs, Gasheizung.
Nutzungsmöglichkeiten:
Das Gebäude verfügt über eine Garage, Büro im EG, sehr grosszügige Zimmer mit hoher Decke, Dachausbau und Balkon mit Sicht über die Dächer von Zofingen.
WYLER-Lofts (schöner Wohnen in der Altstadt Zofingen)
Gewölbekeller
Im 2011 wurde das Haus aufwändig renoviert. Den Keller hatte man nur zweckmässig instand gestellt. Man wollte das alte Mauerwerk aus Sandstein, an dem schon viel «herumgewerkt» wurde, erhalten. Wegen dem Niederschlag (Feinstaub), wurde das Gewölbe im Sommer 2017, durch die Wagner Bautenschutz GmbH aus Ruswil LU, auf Vordermann gebracht. Eine tolle Referenz! Das Objekt ist nun ein bauliches Schmuckstück von A bis Z.

Video Links:
>> Dachgeschoss
>> 2. Obergeschoss
>> 1. Obergeschoss
>> Erdgeschoss
>> Gewölbekeller
_
Fotos Früher und Heute
Höfli mit Terasse








































